Instapklare handelsruimte vlakbij station, kantoren en stadscentrum.
		Klaar om te ondernemen zonder zorgen?
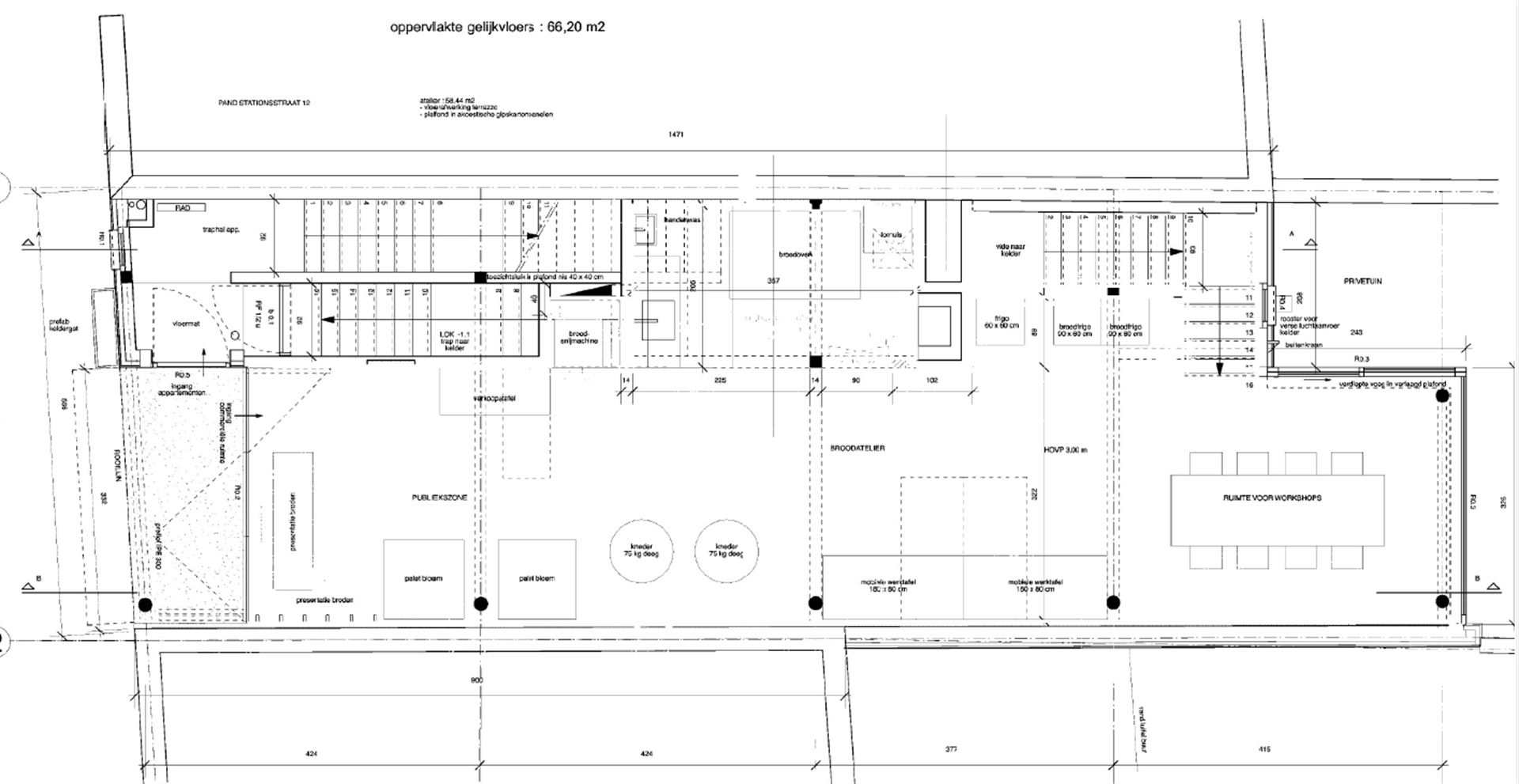
Ontdek deze moderne en instapklare handelsruimte van 66,20 m² op het gelijkvloers en 34,17 m²  op -1 niveau, perfect gelegen in een dynamische en opgewaardeerde buurt van Mechelen. Dankzij de centrale ligging nabij het station, kantoren en het bruisende stadscentrum biedt dit pand een unieke kans voor ondernemers met ambitie.
			Troeven:
		
			Veelzijdige mogelijkheden: Geschikt voor uiteenlopende uitbatingen van horeca, koffiebar, broodjeszaak of take-away tot kantoor of winkelruimte.Instapklaar en modern: De ruimte is afgewerkt met kwaliteitsvolle m...
			Instapklare handelsruimte vlakbij station, kantoren en stadscentrum.
		Klaar om te ondernemen zonder zorgen?
Ontdek deze moderne en instapklare handelsruimte van 66,20 m² op het gelijkvloers en 34,17 m²  op -1 niveau, perfect gelegen in een dynamische en opgewaardeerde buurt van Mechelen. Dankzij de centrale ligging nabij het station, kantoren en het bruisende stadscentrum biedt dit pand een unieke kans voor ondernemers met ambitie.
			Troeven:
		
			Veelzijdige mogelijkheden: Geschikt voor uiteenlopende uitbatingen van horeca, koffiebar, broodjeszaak of take-away tot kantoor of winkelruimte.Instapklaar en modern: De ruimte is afgewerkt met kwaliteitsvolle materialen, moderne verlichting en een strakke vloerbekleding. U kan meteen starten zonder grote verbouwingen.Optimale ligging: Op wandelafstand van het station en omringd door kantoren en nieuwe projecten. Ideaal om een vast klantenbestand op te bouwen.Verdieping -1: Extra opslagruimtes, toiletten met lavaob en een functionele (was)ruimte.Extra meerwaarde: Achteraan geniet u van een groene en rustige buitenzone ideaal als pauzeplek of voor een creatieve invulling.
		
			Waarom kiezen voor deze handelsruimte?
		Dit pand combineert zichtbaarheid, bereikbaarheid en veelzijdigheid met een frisse en hedendaagse uitstraling. In een buurt die volop in ontwikkeling is, krijgt u de kans om mee te groeien met de stad en uw zaak te vestigen op een toplocatie.
 
                     
                     
                     
                     
                     
                     
                     
                     
                     
                     
                     
                     
                     
                     
                 
             
            