PREVIEW: Pakhuys 48 – Luxe wonen aan de Dijle: een unieke ervaring in hartje Mechelen
Welkom in Pakhuys 48, een luxueus en stijlvol gelijkvloers appartement aan de Lange Schipstraat, waar modern wooncomfort naadloos samengaat met een adembenemend uitzicht op de Dijle. Hier geniet u van een unieke combinatie van rust, elegantie en een ongeëvenaarde ligging in het bruisende centrum van Mechelen.
Indeling
Bij aankomst wordt u verwelkomd in een royale gemeenschappelijke inkomhal die leidt naar een centraal gelegen patio....
PREVIEW: Pakhuys 48 – Luxe wonen aan de Dijle: een unieke ervaring in hartje Mechelen
Welkom in Pakhuys 48, een luxueus en stijlvol gelijkvloers appartement aan de Lange Schipstraat, waar modern wooncomfort naadloos samengaat met een adembenemend uitzicht op de Dijle. Hier geniet u van een unieke combinatie van rust, elegantie en een ongeëvenaarde ligging in het bruisende centrum van Mechelen.
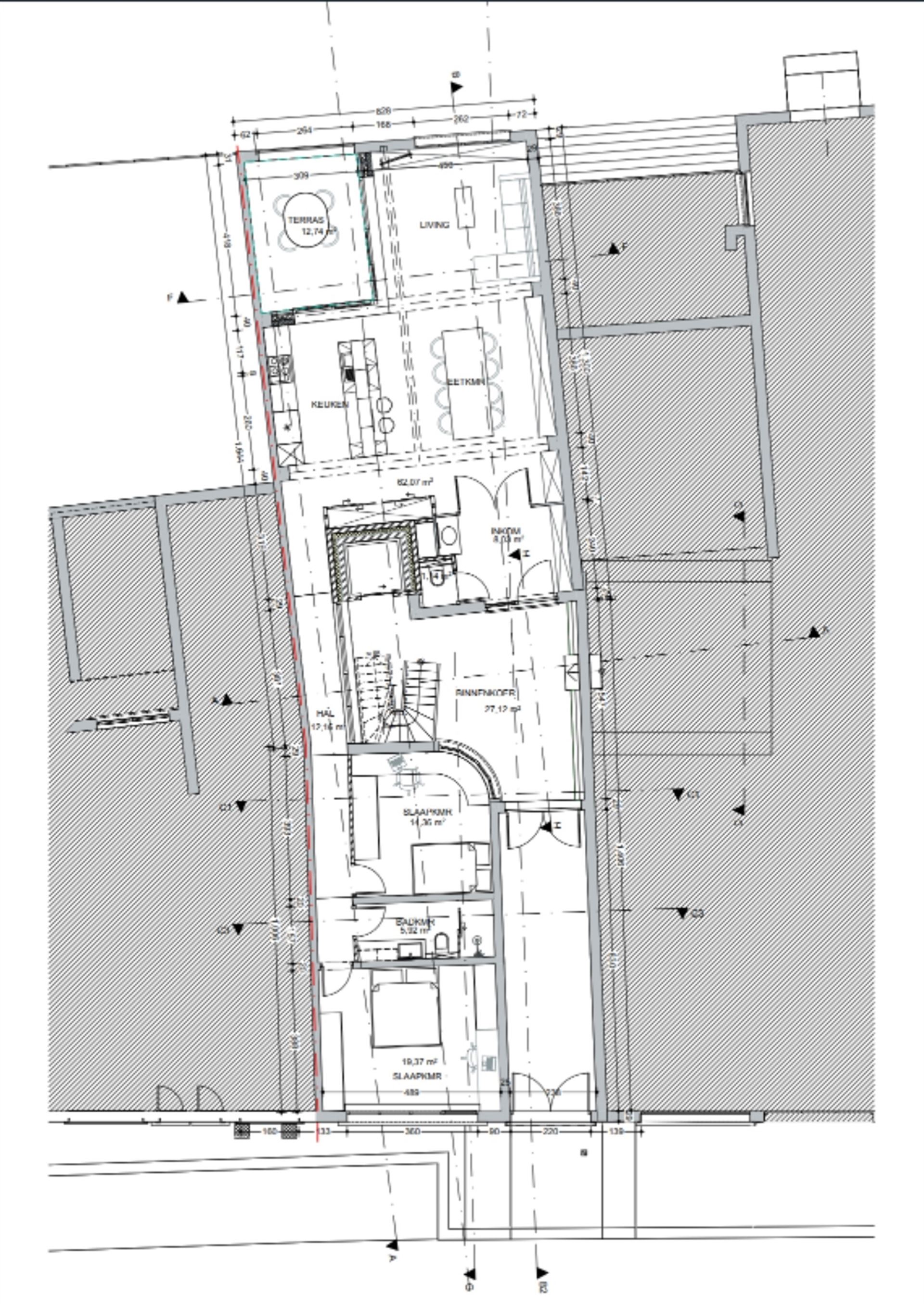
Indeling
Bij aankomst wordt u verwelkomd in een royale gemeenschappelijke inkomhal die leidt naar een centraal gelegen patio. Via deze oase van rust betreedt u het appartement.
Het appartement is op een natuurlijke manier opgedeeld. Zo ontdekt u aan de voorkant het slaapgedeelte. Twee ruime slaapkamers, slim gescheiden door een verfijnd afgewerkte badkamer, perfect om te genieten van rust en privacy.
Aan de achterzijde bevindt zich het woongedeelte. De royale leefruimte met open keuken en eetplaats baadt in het licht en straalt warmte en gezelligheid uit – dé plek voor ontspanning of om gasten te ontvangen.
Het westelijk georiënteerde, inpandige terras van 13 m² vormt een prachtige verlenging van de leefruimte. De grote schuiframen laten overvloedig daglicht binnen en bieden een magnifiek zicht op het water – een perfecte setting om lange zomeravonden door te brengen.
Afwerking
Dit exclusieve appartement van 132 m² wordt afgewerkt met oog voor detail en luxe. Moderne technieken zoals vloerverwarming en energiezuinige voorzieningen (EPC: A) garanderen optimaal comfort en duurzaamheid. De oplevering staat gepland voor de zomer van 2026. Houd er rekening mee dat de getoonde beelden louter als referentie dienen.
Uw droomwoning wacht op u
Pakhuys 48 biedt meer dan enkel een woning: het is een woonervaring die tijdloze elegantie combineert met moderne luxe. Dit is uw kans om te genieten van een prestigieuze residentie op een toplocatie aan de Dijle.
Aarzel niet langer! Neem vandaag nog contact met ons op voor meer informatie of een persoonlijke bezichtiging.